For a better view of the website, update your browser.
Those browsers has new features built to bring you the best of the web.
MLS: 420206

#903 Aqua Bay Unit, Seven Mile Beach with APPROVED PLANNING

W Bay South, Cayman Islands

US$4,945,000

Share Property

About this property

Introducing Aqua Bay, the newest Seven Mile Beach real estate opportunity from Butler Group, Grand Cayman’s premier builder of luxury resort condominiums. Designed to enhance your Caribbean experience, Aqua Bay, with its view of the entire Seven Mile Beach crescent with a westerly facing beach outlook, is a place for you to share with your friends and family while maintaining an outstanding investment for your future.

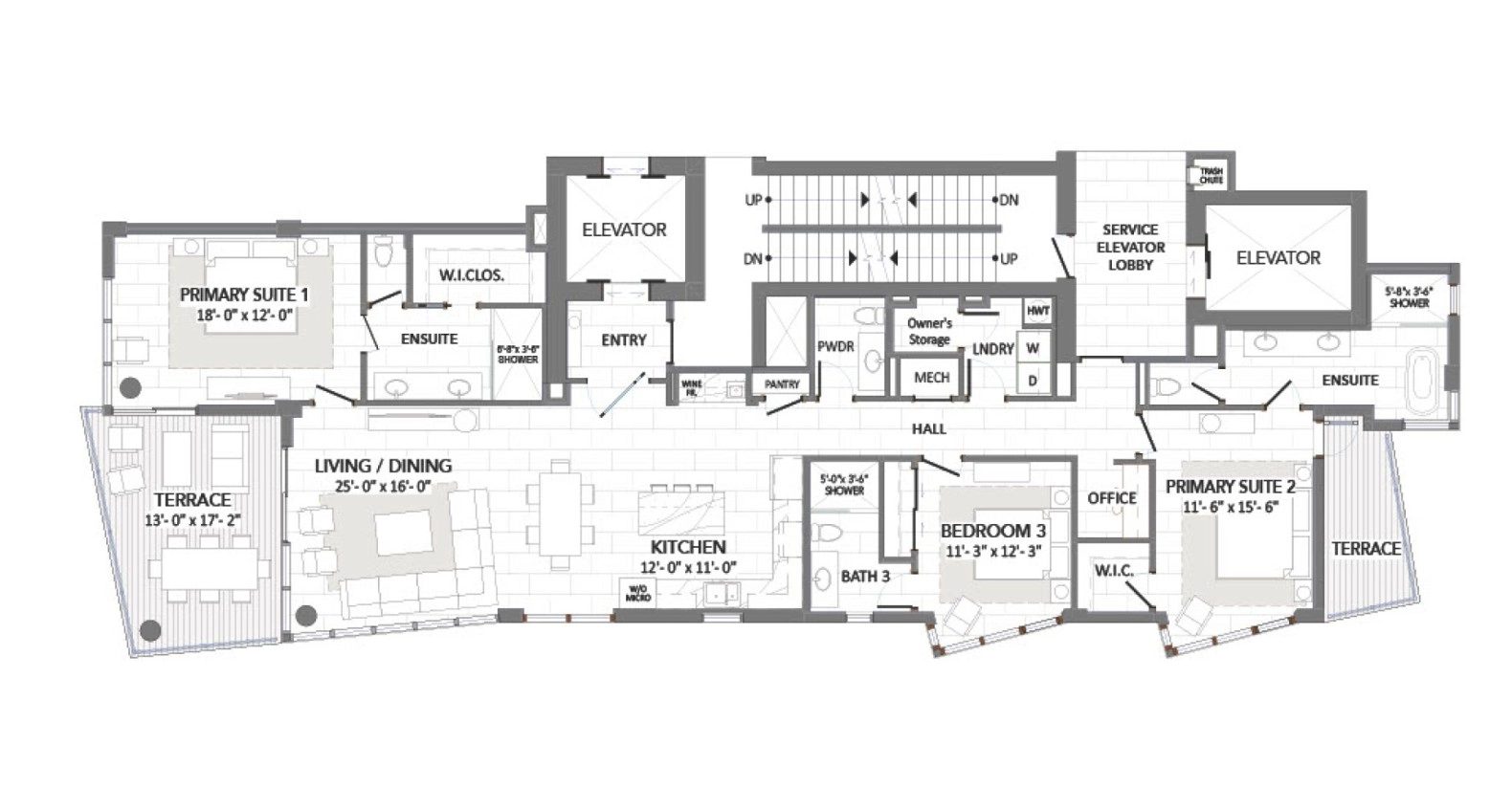
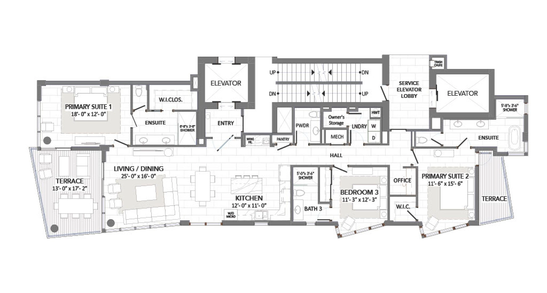
The design of each Aqua Bay villa has been thoughtfully considered to maximize your views and provide exceptional living and amenity spaces. The interior design has been developed by Butler Group’s award-winning partner company, Design Studio Interiors. The villas will feature 10 ft. high ceilings, expansive floor to ceiling windows, superior tile and finish options, top quality plumbing and appliance selections as well as bespoke millwork design for the kitchen, bathrooms, and amenity areas. The exterior of the building reflects a contemporary, Caribbean profile with every opportunity taken to enhance the views, accentuate the landscape, and add interest and beauty to the structure.

Following Butler Group’s forty-four-year reputation for building excellence, Aqua Bay will be engineered and constructed to the highest standards. Elevated over 25 ft. above sea level for privacy and storm protection, this structure will utilize the latest specifications for the building’s essential services, including solar tinted, hurricane rated glazing systems. Amenities will include boutique hotel style reception, 90 ft. wide beachfront, waterfall edge pool, extensive pool deck and private beach, two beachfront BBQ areas for al fresco dining, oceanfront fitness centre, oceanfront owners lounge and games room, on site manager’s office, undercover parking for each villa, day room facilities for late checkout options and lush tropical landscape design. 

Aqua Bay will offer a daily rental program which owners can utilize while not in residence, making this building the newest and most luxurious daily rental destination in Grand Cayman. With 2,646 sq. ft. and featuring 3 bedrooms and 3.5 bathrooms, this villa features an open concept living/dining area and kitchen with wet bar, 2 Primary Bedrooms Suites each with luxurious spa bathrooms - one with access to a large terrace with stunning views of Seven Mile Beach and the other facing North Sound with a terrace to enjoy incredible sunrises and views to Rum Point and Cayman Kai, a powder room, a home office and laundry room. Additionally, by virtue of the central core design, you will enjoy a private elevator entryway to your villa.

Sales price does not include any artwork, ornaments or personal effects.

Show More ...

Property details

#903 Aqua Bay Unit, Seven Mile Beach with APPROVED PLANNING

Status

New

View

Beach Front

Listing Type

Condominium

Block & Parcel

5D / 4H903

Pets Allowed

Yes

Acreage

1.40

Direction

On Seven Mile Beach

Location

W Bay South, Cayman Islands

Mortgage estimate

30
4945000.00$
20
5
30

Your estimated monthly mortgage payment

$21,237
Mortgage Size
$989,000
Mortgage Interest
$0
Total Mortgage Paid
$3,956,000

*Our Mortgage Calculator lets you estimate your monthly mortgage payment input different house prices, terms, interest rates, and down payments and see varying monthly loan amounts.

Highlights

Condominium
Type
3
Beds
3.5
Baths
2,646 sqft
Living
2028
Year Built
1.40
Acreage
New
Status

Interested in this Property?

*Denotes Required Inputs

We use cookies

to give you the best experience Privacy Policy.