For a better view of the website, update your browser.
Those browsers has new features built to bring you the best of the web.
MLS: 420422

Lahala Treehouse Cottage-West Indian style in Savannah-Solidly Built

Savannah, Cayman Islands

CI$795,000

Share Property

About this property

Tucked into natural beauty, Lahala Treehouse Cottage is a sanctuary waiting to be discovered. Standing Seam Roof, built on structural strong pillars. Full of opportunities for rental income, or growing family. Solidly built, stable and secure while keeping all its charm.

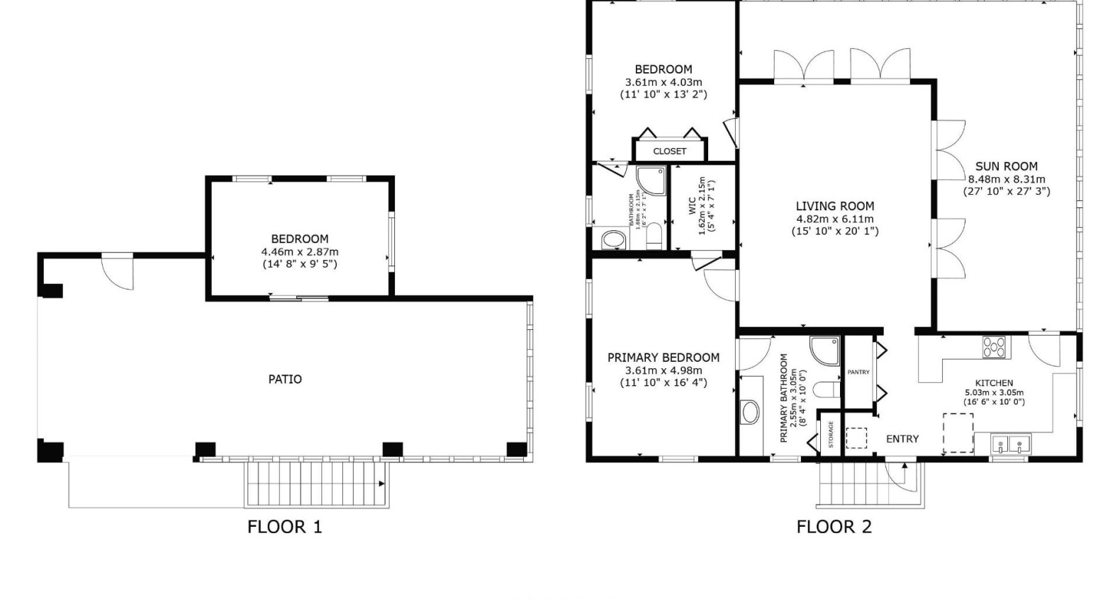
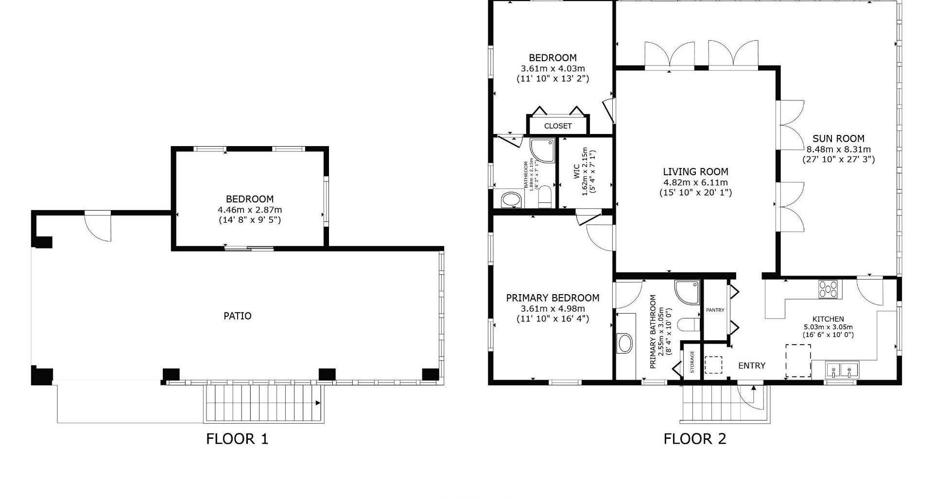
It’s the kind of place where time together comes easily—whether you’re relaxing inside, lounging on the deck to chat and play board games, or retreating to the outdoor cooling deck for evening conversations and open‑air cooking. Perfect for lazy afternoons and starlit nights. As you explore this unique structure, you’ll find two bedrooms with ensuite bathrooms, plus a third bedroom with its own private entrance that can double as an office, games room, or den for added privacy.

Caskwell Drive is a peaceful, family‑friendly neighborhood, and this fertile lot includes a shade house ready for growing your own bounty. A canopy of mature trees surrounds the home, offering fragrant Lang Lang, mangoes, breadfruit, and generous shade throughout the day. You’re just minutes from beautiful Spotts Beach—ideal for snorkeling and turtle watching—and close to Countryside Shopping Centre for convenient shopping and dining. Easy access to main roads for convenient drives into George Town.

The property sits 6' above sea level. This is an elevated Frame home on 9' pilings.

 

Show More ...

Property details

Lahala Treehouse Cottage-West Indian style in Savannah-Solidly Built

Status

Current

View

Garden View, Inland

Listing Type

Single Family Home

Block & Parcel

28B / 250

Pets Allowed

Yes

Acreage

0.30

Direction

Shamrock to Caskwell take R onto Jackson Close and 2nd house on right

Location

Savannah, Cayman Islands

Mortgage estimate

30
795000.00$
20
5
30

Your estimated monthly mortgage payment

$3,414
Mortgage Size
$159,000
Mortgage Interest
$0
Total Mortgage Paid
$636,000

*Our Mortgage Calculator lets you estimate your monthly mortgage payment input different house prices, terms, interest rates, and down payments and see varying monthly loan amounts.

Highlights

Residential
Type
3
Beds
2
Baths
2,200 sqft
Living
1997
Year Built
0.30
Acreage
Current
Status

Interested in this Property?

*Denotes Required Inputs

We use cookies

to give you the best experience Privacy Policy.